г. Караганда, проспект Строителей 33/4, н.п.6

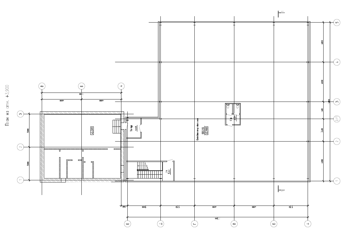
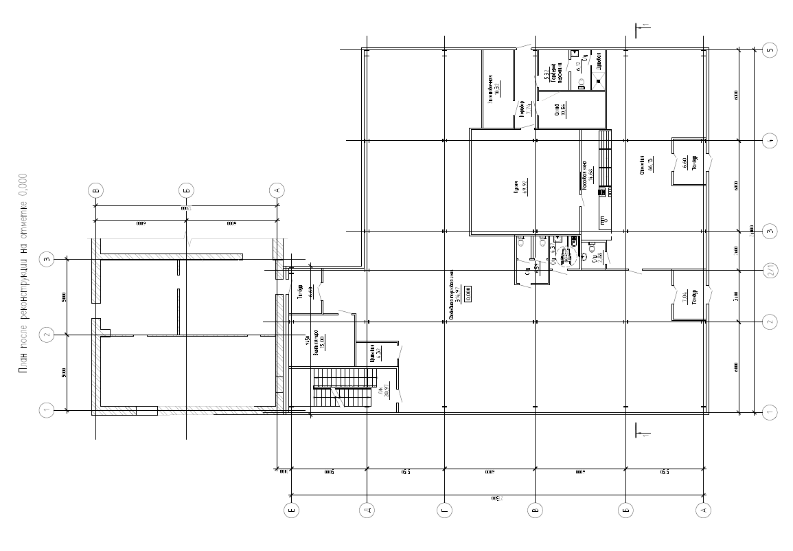
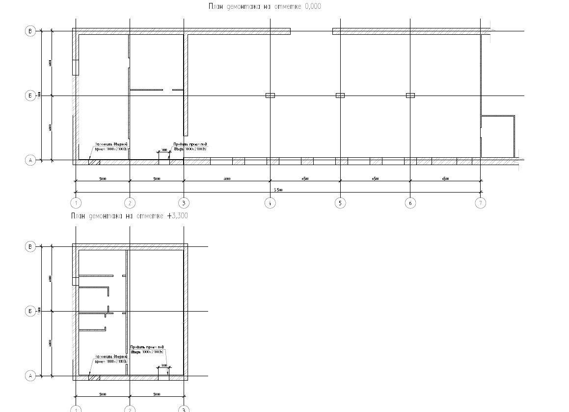
Реконструкция коммерческого помещения и строительство постройки в г. Караганда

Оформите заявку на проект, мы свяжемся с вами в ближайшее время и ответим на все интересующие вопросы.

Фотогалерея

Заказать проект

Менеджеры компании с радостью ответят на ваши вопросы и произведут расчет стоимости услуг и подготовят индивидуальное коммерческое предложение.