г. Караганда, проспект Строителей 33/4, н.п.6

Жилой дом в г. Акколь

Оформите заявку на проект, мы свяжемся с вами в ближайшее время и ответим на все интересующие вопросы.
В состав чертежей эскизного проекта входят:
  • общие данные;
  • генеральный план;
  • план инженерных сетей;
  • ситуационная схема;
  • план фундамента;
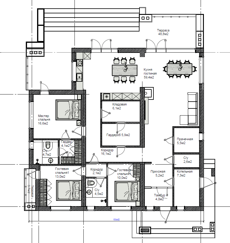
  • планы этажей с экспликацией помещений;
  • разрез;
  • фасады здания;
  • 3D визуализация (при необходимости).

Фотогалерея

Заказать проект

Менеджеры компании с радостью ответят на ваши вопросы и произведут расчет стоимости услуг и подготовят индивидуальное коммерческое предложение.